热销产品:烟道机 | 水泥烟道机 | 机制烟道机 | 烟道机设备 | 轻质烟道机| 内圆外方烟道机 |烟道机器 |

网站地图 | 联系我们

产品列表

最新文章

技术文章

巩义市曙光机械厂 > 技术文章 > 正文

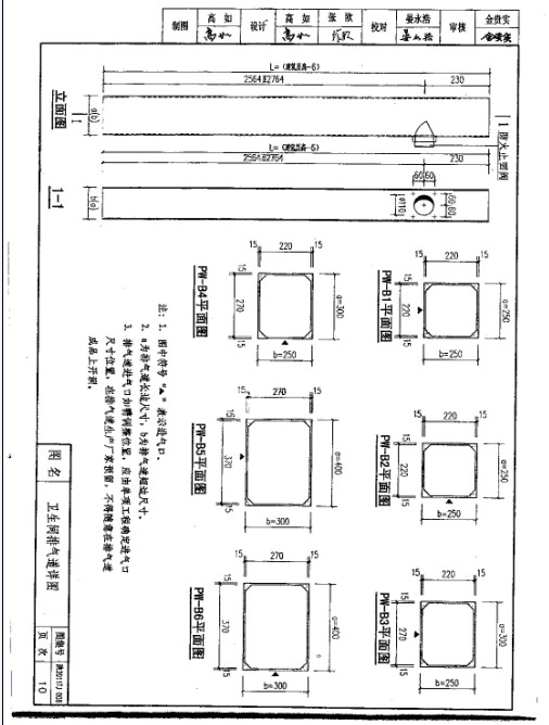
厨房卫生间烟道详图

尊敬的顾客朋友,欢迎您光临巩义市曙光机械厂的专业网站。可能您已经浏览了多家同行网站,令您眼花缭乱,但巩义曙光真诚请您留步,邀您认真了解巩义曙光实力,我们以“真诚、真实、信誉、热情”回报您的信赖,诚迎您实地考察,咨询热线【18703829971】。

厨房卫生间烟道详图

 

厨房卫生间烟道详图

 

厨房卫生间烟道详图

上一篇:【曙光烟道系统优化策略
下一篇:【技术性能优曙光可调式烟道机小投资大利润